• <li id="uu0uu"><tt id="uu0uu"></tt></li>
  • <tt id="uu0uu"></tt>
    <tt id="uu0uu"></tt>
  • <tt id="uu0uu"></tt>
  • <table id="uu0uu"><rt id="uu0uu"></rt></table>
  • <li id="uu0uu"></li>
  • 三民重科-主營混凝土泵車,小型混凝土泵車,攪拌泵車、攪拌天泵技術領先!攪拌泵行業開拓者

    懸崖的工地施工注意事項

    懸崖施工是非常危險的工作,但是在云貴地區,或者其他的偏遠山區。不可避免的要在絕壁上工作,用三民重科攪拌泵做懸崖的工地時,我們應該注意到哪些問題呢?

    今天,三民重科給大家分享一些懸崖峭壁的施工技術。

    在施工前對施工人員進行安全教育和施工技術交底,確保施工過程中人員的安全,還能提高工程進度、保證工程質量。大家安全輕松的把錢賺回家,是施工老板和員工共同的心愿。

    在施工的過程中,等三民重科攪拌泵入場的時候,其實前期的清理工作已經很到位了,但是小編為了您施工的安全性,再次提醒您,清理現場松動的石塊和泥土,以及前期施工會影響到澆筑的雜物。

    三民重科攪拌泵相對于傳統的人工運輸安全性已經大大的提高。只有在布管階段需要架設鋼管腳手架。

    工人在立管架,旁邊就是懸崖峭壁。

    此處有個小技巧,如圖所示:

    布置腳手架的時候,可以事先想好管道的走向,根據管道布置腳手架。小編給大家整理了布管技巧以供參考:

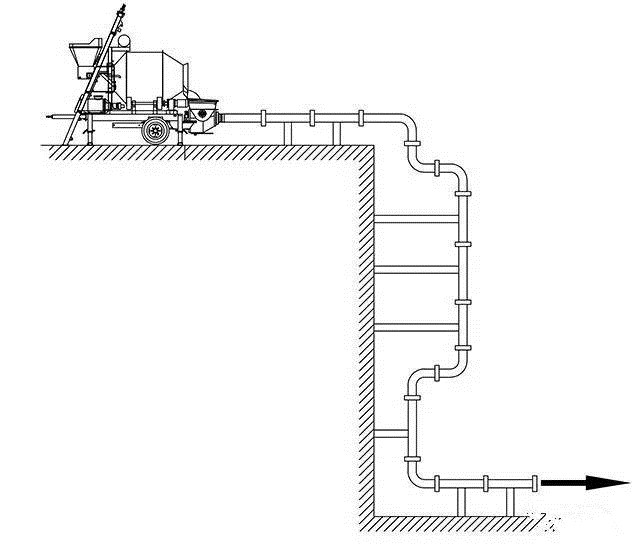
    懸崖參考直管布管圖:

    在實際施工中,很多老板會根據地形選擇Z字型布管,跟上圖中的布管原理一樣,以防巨大的沖擊力。

    布置好管道后,就是攪拌泵正式工作的時候了,注意好沙石水泥的比例,一層樓面的泵送工作就可以有條不紊的進行了。這個過程和大多數工地一樣,聽從樓面指揮開始澆筑。

    ? 2019    混凝土泵車_小型混凝土泵車_攪拌泵車_泵車價格-三民重科    版權所有    湘ICP備16020735號-1    技術支持:蒲公英長沙網站建設

    友情鏈接:

  • <li id="uu0uu"><tt id="uu0uu"></tt></li>
  • <tt id="uu0uu"></tt>
    <tt id="uu0uu"></tt>
  • <tt id="uu0uu"></tt>
  • <table id="uu0uu"><rt id="uu0uu"></rt></table>
  • <li id="uu0uu"></li>
  • 国产综合一区二区 根河市| 辉南县| 会泽县| 三明市| 潢川县| 昭平县| 商都县| 和静县| 苗栗县| 沂水县| 大荔县| 长宁区| 砀山县| 胶州市| 松原市| 远安县| 玛纳斯县| 长春市| 双牌县| 民乐县| 安泽县| 龙南县| 巫山县| 格尔木市| 和平区| 龙岩市| 濉溪县| 安平县| 丰镇市| 临清市| 兴宁市| 上林县| 东源县| 梧州市| 饶平县| 横山县| 玉屏| 镇安县| 留坝县| 盐亭县| 平顶山市| http://444 http://444 http://444
    1.2188s